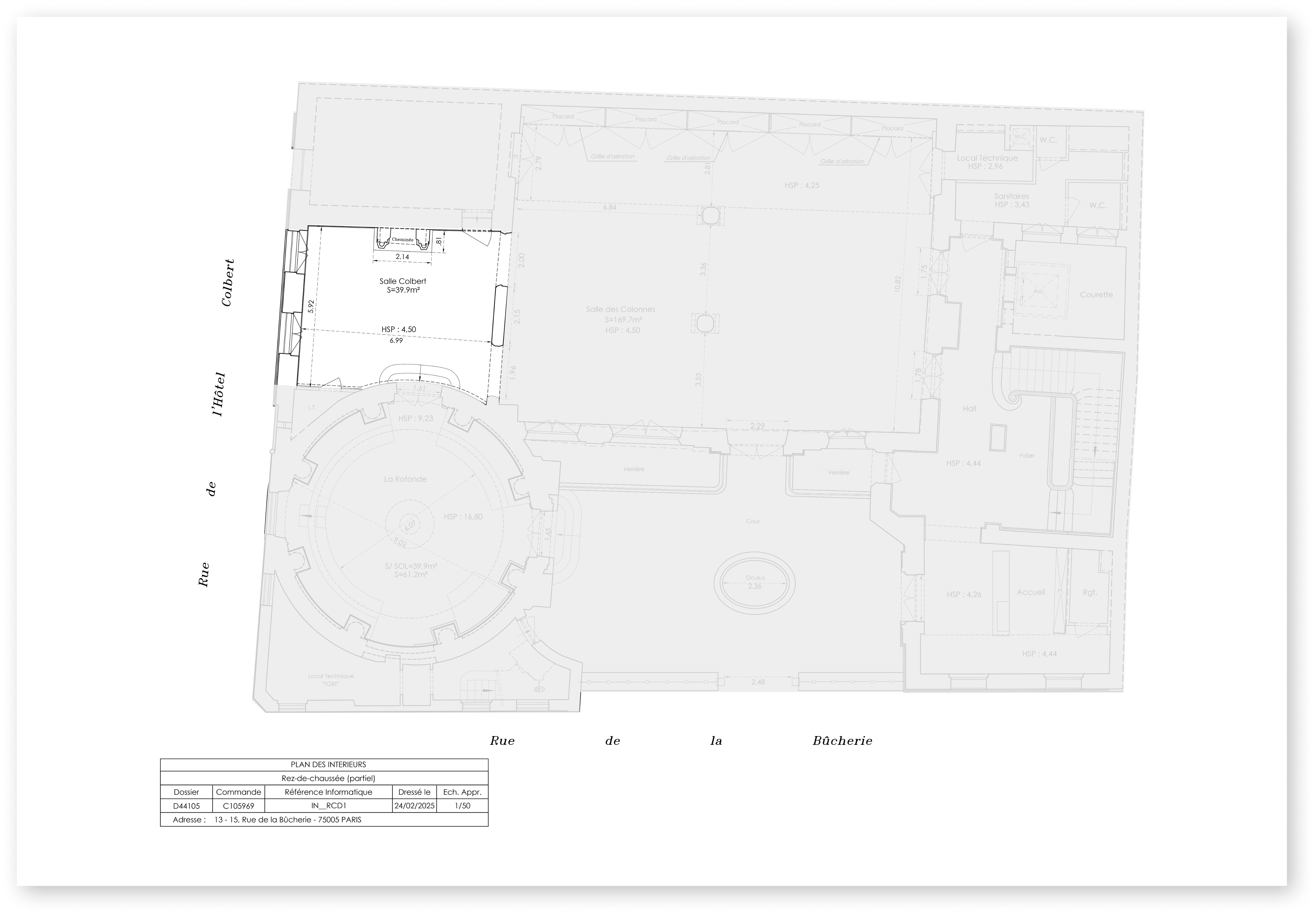
Salle Colbert
La Salle Colbert est un espace intimiste, doté d’une belle cheminée qui lui apporte un cachet chaleureux et élégant. Attenante à la Salle des Colonnes et en lien direct avec la Rotonde, elle constitue un espace complémentaire idéal pour accueillir pauses, échanges informels et cocktails. La Salle Colbert est disponible exclusivement en complément de la Salle des Colonnes ou dans le cadre d’une privatisation de l’ensemble des espaces du rez-de-chaussée.
Informations
Caractéristiques
Surface : 40 m²
Longueur : 7 m
Largeur : 5,9 m
Hauteur : 4,5 m
Niveau : RDC
Technique
Écran sur pied 49″, pars led.
Mobilier
Buffets, mange-debout, tables rondes, chaises Napoléon.
Formats






Configurations
Espaces
Contact


